姶良東餅田B分譲住宅
-
姶良市東餅田774-2 付近
-
建昌小学校(徒歩17分)、帖佐中学校(徒歩19分)
-
90.66㎡(27.41坪)
延床面積: 90.66㎡(27.41坪)
間取り:3LDK+スキップフロア+屋上庭園
駐車場:4台
区画別詳細情報

【新春キャンペーン】事前予約特典🎁
\ 2月末までに事前予約&ご来場の方 /
Amazonギフトカード💳
「最大20,000円分」プレゼント🎁
①事前予約・アンケート記入で「5,000円」
②住宅ローン事前審査で「5,000円」
③注文住宅の方は土地のお申込み、
弊社建売購入お申込みで「10,000円」

※前日までにご予約いただいた方 ※1年以内に新築をご検討の方
※アンケート記入必須 ※その他キャンペーンとの併用不可
※他社仲介・窓口紹介は対象外 ※詳細はお問い合わせ下さい
※特典内容は変更になる可能性があります
【新春キャンペーン】ご成約特典🎉
\ 2月末までにご成約の方 /
家電・家具等お好きなもの
「500,000円分」プレゼント🛋
★建売住宅をご成約の方
★注文住宅の場合は工事請負契約終結
2026年2月28日までに上記条件を
満たした方限定となります。

※ご予約は、下記【予約フォーム】よりお願いいたします。


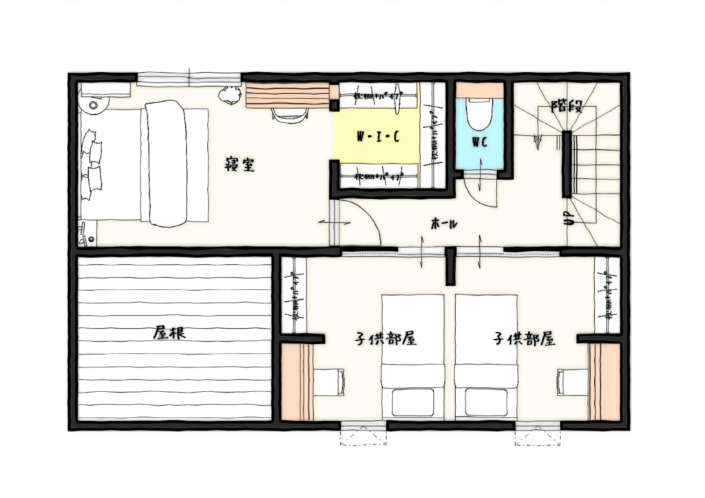
玄関

LDK



ステップフロア

洗面室

ランドリースペース

浴室



寝室



子供部屋



屋上庭園
C+STYLE「姶良東餅田B 分譲住宅」NEW OPEN!
間取り

1F

2F

屋上
大型商業施設まで5分♪住み心地のよい立地!
イオンタウン姶良 車4分
ローソン 姶良東餅田店 車4分
くら寿司 姶良店 車4分
グラード 姶良店 車5分
Aコープ あいら店 車5分
名代かつ屋 万さく 車6分
ジョイフル姶良店 車7分
南日本銀行 姶良支店 車4分
鹿児島銀行 姶良支店 車6分
帖佐駅前郵便局 車6分
姶良市役所 車5分
八日町公園 徒歩5分
建昌菜の花保育園 車6分
建昌こぎく保育園 車7分
山下わたる内科 徒歩5分
帖佐こどもクリニック 車6分
プラージュデンタルクリニック 車7分
十日町バス停(鹿児島交通)徒歩6分
JR帖佐駅 車4分
桜島SA 車8分
アクセス
物件詳細情報
- 所在地
- 姶良市東餅田774-2 付近
- 価 格
- 3,080万円
- 校 区
- 建昌小学校(徒歩17分)、帖佐中学校(徒歩19分)
ご予約は、LINE でも
受け付けています。
イベント来場予約は、LINE 公式アカウント・お電話および当ページにある [ 参加お申し込みフォーム ] にて承っています。
お気軽にご予約ください。
*LINE 音声通話 / ビデオ通話での対応は行っておりません。
特記事項
不動産物件情報は最新のデータの掲載を心がけていますが、データの書き換えの都合上、売却済みなどの場合はご容赦ください。
掲載されている不動産物件データが現況と異なる場合は現況を優先します。
建築条件付きの土地につきましては、土地申込後3ヶ月以内に当社の指定する建設業者と請負契約を終結することを条件とします。





