"住む"だけじゃ終わらない! 店舗付き注文住宅の完成見学会!
日時:2025.11.1(土)〜11.3(月)
2025年11月1日(土)~3日(月)
場所:"住む"だけじゃ終わらない! 店舗付き注文住宅の完成見学会!
【問い合わせ先】
シースタイル 伊敷支店
鹿児島県鹿児島市下伊敷1丁目50-30 3F
"住む"だけじゃ終わらない! 店舗付き注文住宅の完成見学会!
2025年11月1日㊏・2日㊐・3日㊊
オーナー様のご厚意により3日間限定で
「店舗付き注文住宅」の完成見学会を開催します💐
ぜひこの機会にご来場ください🥰

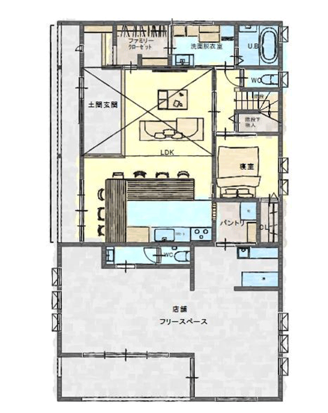
間取り

1F

2F
日時・開催場所
事前予約特典
はなのみやもと
「ミニブーケ💐」
プレゼント🎁

※前日までにご予約いただいた方
※1年以内に新築をご検討の方
※アンケート記入必須
※特典内容は変更になる可能性があります
お施主様こだわり住宅ポイント
●料理好き必見!こだわりぬいた至福のキッチンスペース
●家の内と外をつなぐ土間玄関が、暮らしに快適な動線と広がりをプラス
●梁を見せることで天井が高く感じられ、広々とした空間を演出
●国内最高クラスの耐久性!腐らない・シロアリに食べられない緑の柱「ハウスガードシステム」使用
【物件概要】
土地面積 611.97㎡(185.12坪)
延床面積 144.90㎡(43.83坪)
間取り 3LDK+ファミクロ+店舗
ぜひこの機会に「店舗付き注文住宅の完成見学会」へご来場ください🎵
皆様のご来場を心よりお待ちしております🥰
※ご予約は下記予約フォームよりお願いいたします
ご予約は、LINE でも
受け付けています。
イベント来場予約は、LINE 公式アカウント・お電話および当ページにある [ 参加お申し込みフォーム ] にて承っています。
お気軽にご予約ください。
*LINE 音声通話 / ビデオ通話での対応は行っておりません。





