坂之上分譲モデルハウス グランドオープン!
日時:2026.1.31(土)〜2.1(日)
2026年1月31日(土)~2月1日(日)
場所:坂之上分譲モデルハウス
【問い合わせ先】
シースタイル 伊敷支店
鹿児島県鹿児島市下伊敷1丁目50-3-3F
定員になり次第締め切らせていただきます。
「坂之上分譲モデルハウス」 グランドオープン🚩
2026年1月31日㊏~2月1日㊐
鹿児島市坂之上5丁目に
「分譲モデルハウス」がグランドオープンします👏
オープンに伴い完成見学会を開催🚩
坂之上分譲モデルに遊びにいらしてください💐

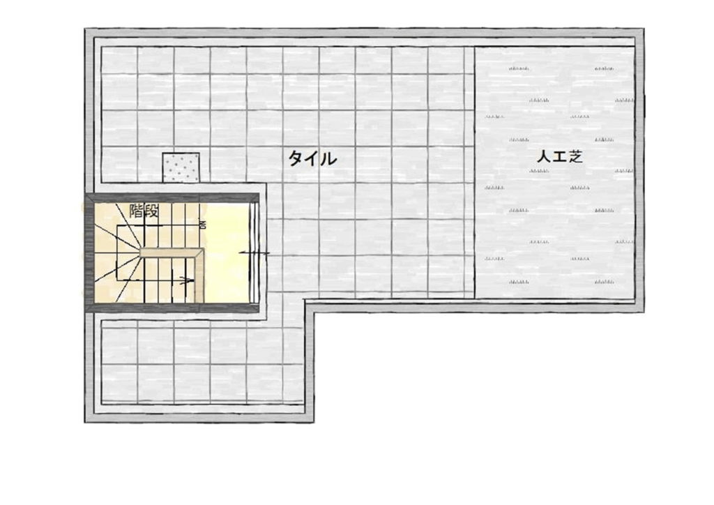
屋上庭園
日時・開催場所
事前予約特典
\ 事前予約&ご来場の方 /
Amazonギフトカード💳
「最大20,000円分」プレゼント🎁
①事前予約・アンケート記入で「5,000円」
②住宅ローン事前審査で「5,000円」
③注文住宅の方は土地のお申込み、
弊社建売購入お申込みで「10,000円」

※前日までにご予約いただいた方 ※1年以内に新築をご検討の方
※アンケート記入必須 ※その他キャンペーンとの併用不可
※他社仲介・窓口紹介は対象外 ※詳細はお問い合わせ下さい
※特典内容は変更になる可能性があります
住宅のポイント
●屋上庭園付住宅棟数「九州No.1」!木造住宅で手に入るプライベートな屋上庭園
●注文住宅派も納得の人気オプション標準搭載!
●シュークロ×ファミクロ×WIC、生活動線に合わせた無駄のない収納
●国内最高クラスの耐久性!腐らない・シロアリに食べられない緑の柱「ハウスガードシステム」使用
【物件概要】
土地面積 139.82㎡(42.29坪)
延床面積 99.35㎡(30.05坪)
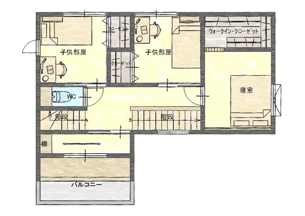
間取り 3LDK+ファミクロ+屋上庭園
駐車場 2台
間取り

1F

2F

屋上庭園
まずは一度「坂之上分譲モデルハウス」へご来場ください🏠
皆様のご来場をお待ちしております😊✨
※ご予約は下記予約フォームよりお願いいたします。
ご予約は、LINE でも
受け付けています。
イベント来場予約は、LINE 公式アカウント・お電話および当ページにある [ 参加お申し込みフォーム ] にて承っています。
お気軽にご予約ください。
*LINE 音声通話 / ビデオ通話での対応は行っておりません。






